COMMEQUIERS
Le Château
Nous allons nous servir des textes du Docteur Baudouin pour relater son histoire.
Aujourd'hui, à Commequiers, au lieu dit les Tours, se sont succédé es toute une série de fortifications, d'époques diverses et très
mal connues encore, qui n'ont jamais été débrouillées et qui ne pourront l'être que quand on pourra, en toute liberté,entreprendre, dans ce site si étonnant et si imprévu, quoique peu apprécié, des fouilles méthodiques scientifiquement menées: ce qui été toujours refusé par lepropriétaire, de 1900 jusqu'à l'époque du classement de ces ruines, qui est de notre oeuvre. (1927).
Nous classons, provisoirement tout au moins, les vestiges, qui restent visibles aujourd'hui (1935), de la façon suivante:
1 - Enceinte préhistorique: énorme fossé avec vallum, ne persistant désormais qu'au Nord et à l'Ouest de l'ensemble.
2 - Enceinte historique, représentée par des restes de murailles, reconnaissables surtout du côté de l'Ouest.
3 - Le château baronnial, dit des Tours, dépendant de l'ancienne baronnerie, dont on a retrouvé les fondations, lesquelles ont été datées, par la découverte d'un trésor de pièce de monnaie du Xe siècle et dont toute trace a disparu. Ce serait le plus ancien de Vendée, antérieur à 1020.
4 - Château-fort, postérieur au milieu du XVIe siècle (puisqu'on en possède un dessin de 1542) qui représente le premier qui fut démoli en 1628, sous Louis XIII, et dont les ruines sont aujourd'hui classées, depuis 1927, comme monument historique.
I - L'Enceinte préhistorique, qui n'est certainement pas d'époque gallo-romaine, est très antérieure à l'arrivée de Jules-César en Bas-Poitou (52 ans avant J-C), peut être gauloise, ou encore plus ancienne. En effet, à cette époque, la Vie était navigable et très accessible jusqu'au moins à Saint-Maixent-sur-Vie, située à 2 km. au Sud du bourg et de cette fortification.
Il y avait même un véritable pont à ce niveau, aujourd'hui comblé de chaque côté de cet ilot, dont on retrouve encore les traces, quoi qu'il soit désormais fusionné avec l'ancienne rive méridionale.
Elle est constituée en effet, par un immense fossé, pourvu d'un gros vallum, qui devait jadis entourer le centre actuel du camp, dit les Tour, et dont le fossé devait être alimenté alors par les eaux de la Vie elle-même.
Peut-être même ce grand fossé était-il une dépendance - à l'aide de la Vie elle-même - du Grand Fossé des Sarrasins, allant, dit-on d'Apremont vers le Lac de Grandlieu, dont la description reste à publier et que je date de l'âge du cuivre.
Je rattache par suite cette énorme enceinte au système définitif du Havre-de-Vie; je la fais remonter de la sorte à la fin de l'age du cuivre.
Jadis on croyait cette enceinte en terre exclusivement de la fin de l'empire romain et de la fin du E siècle, c'est-à-dire de l'époque des premières invasions barbares.
Cette hypothèse est insoutenable, car fossé et vallum sont si formidables, qu'ils n'ont absolument rien de romain ! De tels mouvements de terrain sont toujours très antérieurs aux travaux de l'armée romaine, qui n'avait pas le temps de procéder à de tels terrassement et remaniements.
D'ailleurs il y a des camps romains dans le voisinage: au Nord-Ouest le Cour qu il let, à Beauvoir-sur-Mar; au Sud-Est, le camp de l'Auzaire, à La Mothe-Achard, etc...Il suffit de comparer ces différents lieux pour être fixé.
Pour nous, nous ne pouvons concevoir un tel travail et un tel bouleversement de terres que s'il remonte beaucoup plus haut, très haut, c'est-à-dire à la vraie préhistoire.
Mais il est bien évident - et il faut le répéter ici pour ne tromper personne - c'est qu'on ne sera définitivement fixé sur l'époque réelle de cette construction et de ce grand fossé de 10 m. de haut en certains points et de 10 m. de large en d'autre, que quand des fouilles importantes auront permis d'étudier la constitution même du formidable amas de terre correspondant au Nord, c'est-à-dire à la partie qui reste du vallum d'origine.
II - L'enceinte féodale du premier château de la baronnerie "Commequier-lès-Challans", est du Xe siècle environ dit-on.
Ses fondations sont visibles; mais il y a encore des murs enfouis. Et des fouilles sont indispensables pour en déterminer les limites et les constructions intérieures disparues, de même pour en fixer la date de façon indiscutable.
La date de cette primitive construction a été fournie par deux ordres de documents:
a) Un trésor de pièces de monnaie du Xe siècle découvert dans l'intérieur des fondations en 1934.
b) La trouvaille de pièces de monnaie à peu près de la même époque (Charles le Chauve, mort en 877), faites à Pierre Folles par nous même lors des fouilles de l'allée couverte (1901), parce qu'il est prouvé aujourd'hui que les débris de ce mégalithe attaqué autrefois ont été placés dans les murailles mêmes du dit château.
En effet, c'est dans le cours du Xe siècle, dit un manuscrit local inédit, que la féodalité compléta le travail préhistorique de défense et fit de Commequiers un poste assez fort pour tenir sous sa défense une partie des paroisses actuelles de Commequiers, Soullans, Challans, Saint-Christophe, Saint-Paul-Mont-Penit, dit jadis et pendant longtemps Saint-Paul-de-Commequiers, Maché, Les Herbiers, la Mothe-Fonquerand, Le Perrier, Le Soulandeau, La Morinière, La Verrie et le Verger. C'est alors que les seigneurs de Commequiers prirent le titre de barons.
De ce premier château baronnal, il ne reste plus que les fondations apparentes seulement sur quelques points.
Plus tard, dans la partie Sud-Est de cette forteresse, on ajouta vers le XIe siècle peut-être, un donjon énorme dont les angles s'appuient sur des tours rondes percées de meurtrières pour le service de l'artillerie.
Et c'est là le point de départ du deuxième Grand Château fortifié, qui est en réalité du XVIe siècle, dans son architecture. En effet, dans quelques tours, des ardoises très épaisses, qui proviennent du premier château, se voient presque dans le bas des murs.
On doit en effet le dater par la trouvaille faite par nous à Pierrefolles, lors des fouilles de 1901, d'une pièce de monnaie de Charles VIII (1483-1497).
D'ailleurs, Commequiers fut, autrefois une ville fortifiée, comme La Garnache. Les anciens dictionnaires géographiques, jusqu'à celui de Vosgien (1717), qualifie bien Commequiers, siège d'une importante baronnerie, de véritable ville.
Rien d'étonnant à cela, si l'on se rappelle qu'en dehors du château, il y avait encore des fortifications avancées dans le bourg, à La Barre et au Grand-Village et, si l'on se souvient qu'on comptait, dans la région, plusieurs souterrains-refuges (La Grotte, les Blétières, Les Ferraudières, etc...) plus anciens.
Deux voies romaines y passaient: l'une allant à Raciatum (Rézé); l'autre passant à Gué-de-Vie, en face Les Fervaudières et venant du Sud.
Les bords de la rivière étaient couverts, au demeurant, de reste de villas romaines (Le grand-Village, Le château-de-Vie, Le Bourg, Le Prieuré, etc...).
III - Le Château fort connu, du type féodal, Les Tours, remplaçant le primitif château de la baronnerie, doit être, en effet, de la fin du XVIe siècle, ou, au plus tard, du XVIIe siècle, car nous possédons un dessin qui représente la château antérieur. C'est celui du plan de Jean-Baptiste Florentin, dressé en 1542, et dont l'original existe encore à la Bibliothèque Nationale, à Paris.

Or, on a aussi un plan des ruines actuelles, dû à Octave Rochebrune et B. Fillon. On peut le comparer à celui de 1542 avec le plus grand profit. d'ailleurs le cadastre le donne aussi (1830), à une échelle plus réduite. Il est facile de voir par là que le plan de 1542 correspond à l'ancien château. En effet, ce qui prouve que le plan de Jehan Florentin ne représente que le premier château est ce fait qu'en réalité il est figuré en ruines, les tours n'ayant plus de toiture.
En tout cas, on sait que le nouveau château fort a été détruit par ordre de Richelieu en 1628, après la défaite des Protestants à Croix-de-Vie, en 1602, parce que le propriétaire, alors était un Réformé, un Prince de la Tremoille. C'était sans doute à ce moment la que l'église Saint- Nicolas fut démolie.
IV - Le plan de 1542 prouve qu'une chapelle, dit de Saint-Nicolas, était construite près de l'enceinte du premier château. On sait que cette chapelle fut la première du bourg et que Saint-Nicolas était le patron des Navigateurs. C'est là une preuve excellente de l'existence ancienne d'un véritable port à Commequiers, au niveau de Saint-Maixent-sur-Vie, dont le cimetière a encore des tombes caractéristiques des matelots comme, d'ailleurs, celui de Commequiers.
Cette chapelle n'était séparée que par une douve du château. Le chapelain avait sa demeure au village, ou en 1933, un important trésor du XIVe siècle a été découvert. Il était nommé par le Doyen du Chapitre de Poitiers. Au début cette chapelle fut affectée au service paroissial, mais bientôt, elle fut remplacée par celle du prieuré, dit de saint6pierre.
Je n'insiste pas sur le plan des ruines, cela, ici, ne servirait à rien. Il faut les visiter, c'est le principal. Et la chose est aisée.
6 janvier 1935.
Quelques mois plus tard Le Docteur Marcel Beaudouin écrivait un autre article.
Par le plus grand des hasards, on possède, du vieux château féodal de Commequiers, restauré, antérieur à celui de la Garnache, un dessin qui donne, en petit, l'état dans lequel se trouvait cette demeure seigneuriale en 1542.
Ce document se trouve sur ce qu'on appelle le Rouleau d'Apremont, vaste plan qui se trouve au Cabinet des cartes, à la Bibliothèque Nationale, et qui est bien connu depuis la trouvaille par B. Fillon, l'une des plus belles découvertes historiques, faite par ce grand archéologue trop méconnu désormais.
Mais sur cette splendide pièce d'archives, qui a pourtant cinq mètres de long, le château n'occupe que quelques centimètres de large.
Aussi ne pouvons-nous en donner ici qu'une reproduction photographique très petite?
Notre réflexion: cette image est assez curieuse, ce que l'on voit c'est l'entrée du château, il n'est pas certain que ces deux tours aient eu un toit. Elle ne correspond pas à ce qu'il reste des ruines, on peut voir à l'intérieur un très haut clocher d'église, et une grande ouverture sur le côté droit qui peut être l'entrée de cet édifice, nous voyons aussi des cheminées, à par ces deux tours il n'y a aucun signe d'un château fort.
Quelle différence avec le plan en élévation du château d'Apremont de 1535, par rapport à celui de Commequiers. Il est vrai que l'un est un château d'habitation et l'autre un château de défense.

Note de notre part, ce rouleau d'Apremont qui montre la rivière la Vie, a été fait spécialement pour le seigneur d'Apremont, voici la dédicace de Florentin: "A Messire Jehan de Bretaigne, illustrissime duc d'Etampes, Monseigneur , pour m' acquitter de la promesse que je vous avoye faicte en Aspremont de vous monstrer par figure comme la rivyère nommée la Vie pourroit poter basteaulx d'Aspremont jusques à la mer..." Ce rouleau possède un cartouche surmonté des armes et de la devise "semper Viva" de Jehan de Brosse duc Etampe, comte de Pentièvre et seigneur d'Apremont, orné de son portrait et de celui de sa femme Anne de Pisselieu. Ce seigneur voulait faire venir ses visiteurs par la Vie de tel manière qu'ils puissent admirer la beauté de son château depuis les rives de cette rivière, ceux qui connaissent Apremont peuvent voir que le château est beaucoup plus haut que les rives.
Quoi qu'il en soit, ce petit croquis est des plus précieux, car il nous donne une idée assez nette de ce qu'était le château des Tours à Commequiers, avant sa destruction par Richelieu en 1628.
Il nous montre une grande entrée qui existait alors dans la courtine Sud, et qui n'existe plus aujourd'hui, quoique celle-ci soit conservée, parce que cette porte cochère a dû être supprimée après 1542, sans doute pendant la guerre religieuse et les autres luttes protestantes et des catholiques de 1560 à 1622.
Il ne faut pas oublier, en effet, qu'en 1628 cette fortification appartenait alors aux de la Tremoille, les protestants les plus riches et les plus puissants du Centre-Ouest.
Cette entrée haute et large, permettait le passage des voitures et des cavaliers dans l'intérieur de l'enceinte; et on y accédait par deux chemins, qu'on voit dessinés sur notre figure. L'un venant du bourg de Commequiers, situé au Sud-Ouest; l'autre, des bords de la Vie, entre l'ancien pont de Commequiers-Saint-Maixent et Dolbeau. Ces deux chemins passaient aux pieds de deux vieux arbres.
A droite de cette entrée cavalière, très haute, on voit une autre petite porte, qui est voisine de la tour Sud-Est, et qui servait exclusivement aux piétons § Si l'on admet qu'elle avait deux mètres de haut environ et un mètre de large, comme d'habitude, on peut en déduire que la grande porte avait au moins 2m50 de large et 4m de haut, avec un cintre roman 'avec courbe marquée). Sur le dessin, on note qu'elle se trouvait exactement au milieu entre les deux tours Sud-Ouest et Sud-Est, dont les créneaux sont très reconnaissables; ils étaient alors intacts. Chacune de ces deux tours, les seules visibles sur les huit constituant l'ensemble de l'enceinte féodale, on remarque deux meurtrières. La plus inférieure est à 0m80 environ du sol et devait correspondre à un canon placé au rez-de-chaussée. Elle est rectangulaire et allongée horizontalement pour permettre à la bouche de canon de se déplacer horizontalement et changer la direction du tir. L'autre, supérieure, était au premier étage de chaque tour, à la hauteur d'un mètre au dessus du plancher. Mais cette meurtrière à l'encontre de la première, était presque carrée. Au niveau de cette dernière, sur la courtine, entre les deux tours et au dessus de la petite porte aux piétons, on aperçoit une fenêtre. cela prouve que la courtine portait en dedans un premier étage.
On constate l'existence, à l'intérieur de l'enceinte même, d'une construction importante ayant au moins un étage et dont la couverture était au niveau des créneaux.
Au dessus de la courtine correspondant à la porte cochère, on aperçoit deux des fenêtres de la paroi Sud de ce bâtiment, qui semble couvert d'ardoises, comme le clocher voisin et la maison située hors de l'enceinte. Une grosse cheminée assez haute, qui émerge de la toiture, se voit au centre et à droite une girouette qui semble poussée par le vent d'Ouest, autre façade à l'Est, avec fenêtre?
Derrière, c'est-à-dire au Nord, de la tour Sud-Est, s'élève l'église, placée en dehors de l'enceinte et appuyée sur la courtine Sud-Est, qui portait alors le nom de Saint-Nicolas et était alors l'église paroissiale de Commequiers. On distingue très bien, à droite, la nef, pourvue au Sud-Est d'une large baie vitrée et surmontée d'une croix de pierre.
L'entrée du bâtiment devait donc regarder le Nord-Ouest; ce qui veut dire que l'église avait été construite sur la ligne solsticiale de l'Orient d'hiver.
Le clocher très élancé, surmontait une petite tour à fenêtres et état couvert en ardoises, comme l'église. A son sommet, il y avait une grande croix, mais pas de coq. Ce dernier est remplacé par un oriflamme en métal mince servant de girouette de la maison centrale, il se dirige vers l'Est, sous l'influence des vents dominant, à Commequiers.
Le monument religieux était donc accolé au coin Sud-Est de l'enceinte, sur un terre plein qu'à menagé l'ancienne douve et qui portait en outre une autre maison.
Dans cette dernière, nous voyons la cure, plutôt que la demeure du gouverneur du château, qui devait habiter à l'intérieur, avec sa garnison.
Cette maison, à un étage, couverte aussi d'ardoises, présente deux hautes cheminées à chacune de ses extrémités. Elle devait donc être importante. On voit son côté Sud seulement, montrant une petite fenêtre centrale au rez-de-chaussée et deux fenêtres assez grandes au premier étage.
Si, dans les archives du Moyen-Age, on trouve assez souvent des traces de l'église Saint-Nicolas, on y rencontre pas de données sur cette construction énigmatique; et nous ne pouvons en dire d'avantage
Il est bien évident que le dessin, que nous venons de disséquer, n'est qu'un représentation très schématique et très condensée de l'ensemble du château, dont six tours sur huit sont invisibles et que la construction centrale n'est que l'une de celle de l'enceinte. Mais notre document est cependant suffisant pour nous permettre de comparer ce château à ceux même de l'époque, bien conservés encore, tels ceux du midi de la France, par exemple.
Nous pensons qu'auparavant, la courtine Sud n'avait pas du tout cet aspect et qu'il n'existait pas là la porte cochère. Celle-ci n'a dû être établie qu'à l'époque où le château a été, si l'on peut employer cette expression pour une fortification féodale, occupée plus ou moins bourgeoisement par la famille qui en était propriétaire à ce moment-là (1532).
Le vieux château du Xe siècle aurait été reconstruit de 1489 à 1500. Nous serions donc là en face d'une construction presque neuve, ayant à peine cinquante ans d'existence.
Ce sont les seigneurs du Bellay, en Anjou, qui en étaient propriétaires. En effet, à l'aurore du XVIe siècle, Catherine de Beaumont, héritière de Louis, fit entrer par son mariage la baronnerie de Commequiers dans l'apanage des seigneurs du Bellay, famille qui comptait des illustrations dans l'église, dans la diplomatie et dans les lettres, comme dans l'armée. Mais après la mort de sa femme, Eustache du Bellay se fit prêtre et mourut en odeur de sainteté. Mais, quoi que disent les auteurs, ce ne sont pas ses seigneurs qui ont construit l'église Saint-Nicolas; celle-ci existait depuis longtemps et ils n'ont pas eu à reconstruire ce qui n'avait jamais été détruit.
Pierre Marchant, architecte et doyen du Chapitre de Luçon, visita la paroisse de Commequiers en 1533 et y trouva treize prêtres. Cette église Saint-Nicolas était donc alors très importante; elle possédait des confréries de Saint-Nicolas et de la Vierge très florissantes.
P. Marchant a donc connu le château en 1533, tel qu'il est représenté sur le rouleau d'Apremont, et il est regrettable qu'il n'est pas laissé un récit détaillé de sa visite à Saint-Nicolas et au château féodal remanié par les du Bellay.
Les protestants brûlèrent Commequiers en 1568, mais on ignore s'ils se sont alors attaqués à cette fortification.
En 1622, Louis XIII ne passa pas par Commequiers. Mais comme le 22 janvier 1627, Martin du Bellay vendait pour 115.000 livres la baronnerie de Commequiers à François-Philippe de la Tremoille, protestant notoire, et la première famille du Poitou remontant aux Croisades, Richelieu n'hésita pas à sacrifier leur nouveau château, et en 1628, sa démolition en fut ordonnée ! On démantela les tours, détruisit les habitations. En même temps, on rasa, bien entendu l'église Saint-Nicolas, et peut-être même celle dite d Saint-Jacques, qui, d'après Mourain de Sourdeval, avait été construite près du village du château au Nord des tours, mais dans l'enceinte préhistorique où ses restes étaient connus de ce savant;
Sic transit gloria mundi ! Ce sont donc les catholiques qui ont détruit, en l'espèce, église et château..
27 mars 1935
Le château
Voici l'état des lieux en 1966

Les mouvements du terrains dans ce qui est appelé "la basse-cour".
Depuis cette année il y a eu beaucoup de changements, mais pas dans l'intérêt du site, un certains nombres de jeunes de la commune ont adopté cet endroit mouvementé pour faire du moto-cross,
En 1970 il a été fait un sondage ( à cause des vaches qui occupaient cette prairie le sondage n'a pas pu être important) devant les tours n° 1et 2 (voir le point rouge sur le plan ci-dessus), cette année là on pouvait deviné qu'il existait un soubassement de tour (aujourd'hui nivelé à cause des fêtes qui sont données sur ce terrain). Il a été trouvé de nombreuses ardoises, de nombreux morceaux de poteries, de grosses pierres taillées qui peuvent être le seuil ou dallage devant une entrée, c'est à cet endroit que nous avons trouvé l'esterlin figuré dans le site "Commequiers seigneurs)
Nous n'avons plus les photos du soubassement de la tour, il nous reste plus que la grosse pierre taillée ou l'on peut voir un tuyau d'écoulement, et le dessin d'une ardoise gravée.
Nous supposons que les ardoises gravées que l'on va rencontrées sur ce lieu représentent des études faites par de jeunes compagnons
Voici les restes d'une très belle poterie dont les restes sont encore sous terre, poterie vert clair métallisé avec des tétons plus foncés
Quelques cartes postales nous montrent l'état du donjon suivant les âges:
19..
19..
1917
193.
Cette carte a été envoyée en 1960
Vous avez pu voir sur ces cartes postales, d'époques différentes que la tour n°1 est presque toujours dégagée?
Nous avons connu le donjon dans cet état:
Après quelques années débroussaillement:
Nous allons entrée dans ce que l'on appelle le donjon, l'entrée actuelle se fait par une brèche faite dans la courtine n°1. Nous ne savons pas si cette ouverture était une porte ou si elle a été faite pour pénétrer à l'intérieur par y prendre les pierres taillées qui se retrouvent dans certaines maisons du bourg. A une certaine époque l'intérieur de ce donjon a été transformé en potager par le paysan qui louait le pré 4pour ses vaches.
Il est curieux de voir la figuration du château sur une motte de cette grosseur:
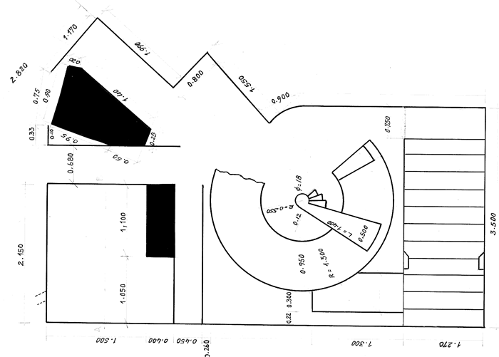
Plan de 1973
Courtine n°1 et salle n°1:
De la courtine nous ne pouvons pas en dire grand chose, elle a été rasée à hauteur d'un premier étage,
De la salle n°1 (6,70m x 5,60m), nous l'avons trouvée grossièrement dégagée, de nombreuses pierres taillées en granit s'y trouvaient, mais elles ne pouvaient pas correspondre avec le dessin de cette salle. Nous pensons que ces pierres ont été amenées là pour être emportées dans le village. De l'intérieur, à droite vous voyez une porte qui permet d'accéder à la salle triangulaire n°8, à gauche, vous voyez l'escalier, que nous avons découvert, car il était combler de terre, il permet accéder à l'étage supérieur. Sur chaque mur de cette salle des corbeaux qui supportaient le plancher de la salle supérieure. Sur le sol, se trouve une très belle pierre de cheminé
La photo vous montre l'escalier, il n'est pas encore complètement dégagé, il a 11 marches. De chaque côté vous pouvez voir, à hauteur de la huitième marche, ce qui reste d'un encadrement de pierres, en granit, travaillées pour une porte. D'après la taille des pierres, la porte ne pouvait s'ouvrir que de la salle.
La partie intérieure à l'arrière de la tour n°1.
Cette partie est toute utilisée, une fois monté les onze marches, vous trouvez à gauche, un escalier à vis qui montait à l'étage supérieur.
Derrière cet escalier, un trou rectangulaire ouvre sur une pièce (6m x 4m) voûtée, carrée, sur la photo ci dessous l'ouverture se trouve sous l'amas de pierres (au centre de la photo), au sol, côté courtine, un petit tunnel ouvre vers l'extérieur, il est bouché de l'extérieur et caché par la terre, de manière que nous ne pouvons pas le voir. Dans cette pièce se trouvait cette pierre de granit:
A côté, devant l'entrée de la tour, un autre trou triangulaire, profond de 5,7m de profondeur. La photo ci-dessus vous montre aussi qu'il devait se trouver une porte encadrée de pierres de granit taillées, il en reste encore une sur le sol.
Tour n°1:
Comme vous pouvez le voir cette tour est une des mieux conservée et une des plus importante, de l'extérieur vous pouvez voir quatre ouvertures pour pièces d'artillerie et beaucoup plus bas deux ouvertures plus petites sur le côté gauche. A hauteur du premier étage, une belle fenêtre entourée de pierres taillées de granit
De l'intérieur vous voyez aussi que la fenêtre est entourée de pierres taillées alors que les meurtrières sont en pierres naturelles.

L'autre côté de la tour, côté intérieur du donjon, on voit encore les traces des constructions qui pouvaient se trouver aux étages.
A l'intérieur de la tour vous trouvez dans les murs, des traces soit de cheminées ou de latrines.
Ici le rez-de-chaussée de la tour, vous voyez que sur la circonférence un rebord qui servait à supporter le plancher.
Le fond de la tour à 5 mètres:
Nous avons trouvé entr'autre les morceaux de cette poterie:
Salle n°2:
Côté intérieur, vous pouvez constater la hauteur de la courtine (qui ne doit pas être entière), sur le côté droit, au premier étage, l'emplacement d'une fenêtre. Au rez-de-chaussée, à droite, une goulotte avec une lèvre vers l'intérieur, nous en trouvons une autre, en face, donnant sur la cour intérieure du donjon, mais sans lèvre.
Dans cette salle il a été trouvé beaucoup de petits matériels, il n'est pas nécessaire de les énumérer entièrement ici, parmi celui-ci, un petit dé en os, un verrou, un épais morceau d'ardoise gravé, deux pièces de monnaie en bronze...

Ces pièces de monnaie ne sont pas à l'échelle 1
Tour n°2.
Vous retrouvez les mêmes meurtrières, mais vous pouvez voir sur la vue de gauche, en bas et au premier étage, une fenêtre. Cette tour n'a pas été dégagée
.
Salle triangulaire n°2, la salle n'a pas été dégagée.
Tour n°3.
Vous pouvez constater que les ouvertures de cette tour sont toutes entourées de pierres de granit taillées, que la pierre supérieure de la porte est sculptée en accolade. Vous voyez à droite le montant de la porte qui servait à entrer dans la "cuisine". Cette tour n'a pas été dégagée.
Salle n° 3:
Nous avons baptisé cette pièce la Cuisine à cause des éléments qui s'y trouvent.
On accède à cette pièce par la porte qui se trouvait à droite de la porte à accolade, il pouvait certainement avoir une autre porte donnant sur la cour extérieure pour accéder au puits.
Sur cette photo vous voyez dans quel état se trouvait cette pièce, nous l'avons dégagée. Côté courtine nous trouvons une large ouverture (fenêtre ?) puis un évier avec évacuation sur les douves.
Sur le côté gauche, c'est-à-dire côté pièce triangulaire de la tour n° 3, devait se trouver une grande cheminée dont il ne reste qu'une
pierre.
Derrière le mur de cette pièce, côté cour intérieure, existe un puits à double accès:
Dans ce puit (profondeur 7 mètres) nous avons trouvé: les pierres de la margelle, des morceaux de poteries, un morceau de sceau en bois, un éperon en fer, des ardoises et cet instrumen t de musique en terre vernisée vert, un cor:
Tour n° 4: Pas de fouille.
Tour n° 5: Pas de fouille.
Tour n° 6: Pas de fouille.
Tour n° 7: Pas de Fouille
L'intérieur de la tour, la photo n'est pas bonne, mais vous pouvez voir les premières marches d'un escalier à vis qui montait au premier étage, à gauche de l'ouverture (qui devait être une fenêtre) se trouve une petite niche pour mettre une statuette.
Tour n° 8: Les fouilles n'ont rien apportées de spécial, morceaux de poteries.
Salle triangulaire n°8.
un des corbeaux Pierre de cheminée tombée de la pièce du dessus
Curieusement il a été trouvé dans cette salle une vingtaine d'épingles en laiton à têtes différentes qui sont certainement tombées à travers le plancher.
Quelques photographies de la cour intérieure:
Le château en 1976:
Les douves ont été recreusées par le propriétaire M. S. Bayer
En 2000:
Photos aériennes.com
Tel qu'il aurait pu être:

Nous n'avons pas trouvé dans les documents consultés que ce château ai vraiment survit comme forteresse défensive contre un envahisuer, le seul fait d'armes mentionné est la prise de force de ce château par Perceval Chabot vers 1446, apparemment sans trop de dégats.
Et encore:
Il aurait été trouvé en 1921, par Mr. Athanase Grossain, dans une "fosse" près du château, quelle fosse ou se trouvait-elle ? Une bombarde dont nous avons la chance de posséder une photo.
Et le trésor....
Le docteur Marcel Baudouin parlait d'un trésor découvert en 1933 dont il n'avait pas pu en voir une pièce.
Nous avons entendu qu'il aurait été découvert dans une tour ?
Il en aurait été trouvé un autre dans une poterie se trouvant dans un talus d'un champ.
Il est écrit dans une petite publication (1965) sur Commequiers qu'un trésor avait été trouvé en direction du Moulin d'Avau en
1933, au flanc d'un talus, dans un vase contenant 5000 pièces de monnaie.
Il s'agit sûrement du même trésor, mais il est curieux que M. Baudouin n'est pas pu le voir ou en trouver une pièce.
En somme le point de trouvaille est notablement à l'Est du village du château, en dehors du groupe de maisons, au-dessous du
chiffre 30 de la carte d'Etat-major.
Cela correspond à environ 500m du château féodal, dit les Tours. Mais c'est dans un talus qu'était le vase. C'est un soir en
passant dans cette prairie située assez loin du Moulin à vent d'Avau, près de la vieille route, que Mademoiselle X, cultivatrice aperçu
l'anse du pot. Elle tira sur cette anse pour l'extraire et, bien entendu, le brisa. Tout un lot de vieilles pièces de monnaies blanchâtres.
Dès le début, elle a raconté qu'il y avait 5000 grammes de pièces et elle m'indiqua alors le nombre de 5000 monnaies.
Il est écrit que certaines pièces, des deniers, des mailles tournois, des gros, seraient frappées à l'effigie de:
Phillipe IV le-Bel (1285-1314) Eudes de Bourgogne (1230-1266)
Philippe V le Long (1314-1322) Charles IV (1294-1328)
Philippe VI de Valois (1321-1359) Edouard II (1284-1327)
Charles-le-Bel de Blois ? (1307-1327)
Toutes ces pièces date en majorité du XIIIe siècle et du début qu XIVe siècle, vu le nombre ce trésor devait représenter une
fortune pour le propriétaire, qui était-il ? Pas le seigneur du château, car nous pensons qu'aucun des seigneurs de ce lieu ait vécu
dans cette forteresse, il devait être habité par une garnison avec un capitaine ou régisseur responsable des lieux, de plus il y avait
assez de caches dans le château pour le mettre en sécurité; alors d'ou provient-il ?
Nous ne pouvons pas confirmer ces identifications, toutes ces pièces sont en argent; elles ne sont pas à l'échelle :